2021市優 | 隆福寺地區復興及隆福大廈改造(公共建筑一等獎)

公共建筑
“北京市優秀工程勘察設計獎”是由北京工程勘察設計協會主辦,北京市規劃和自然資源委員會指導的北京市勘察設計行業最高獎項,分為綜合獎、專項獎、單項獎三個類別。本屆獎項評選從2021年4月27日申報開始至7月30日初審結束,評審專家組嚴格按照“北京市優秀工程勘察設計獎”評審要求,對申報項目進行認真篩選和綜合評價,經北京工程勘察設計協會審定,最終評選出綜合獎519項,專項獎262項,單項獎123項。其中,建筑工程設計綜合獎(公共建筑)一等獎35項,二等獎59項,三等獎71項,現對一等獎獲獎項目成果進行展示如下:
隆福寺地區復興及隆福大廈改造

隆福大廈位于北京東城區隆福寺舊址南段。此地原為是隆福寺廟會及東四人民市場所在地,大廈則建于1984年,時為北京四大商場之一,后于1993年因火災修復擴建,2004年商場停業。

▲ 《乾隆京城全圖》中的隆福寺地區

▲ 改造前隆福寺地區衛星圖

▲ 隆福寺主要時間節點的肌理沿革
作為街區更新的第一步,隆福大廈的改造率先啟動具體設計與實施工作。新隆福大廈的定位不再是一棟商業建筑,而是以文化創意辦公為主,在低區和屋頂層配置服務型商業等公共功能的辦公綜合體。

▲ 從胡同里仰望隆福大廈
? 融入街區
新隆福大廈在地面層向建筑內部引入街道,并與外部街巷對接。首層的商業空間被軸線主街和延展到東西方向的支線街道拆分成幾組單元。同時原來大廈首層完整的界面也順應內部的變化被拆解,不同材料的組合的盒子以及坡屋頂形態更好地取得了與周邊住區在尺度上的融合。

▲ 整體改造策略

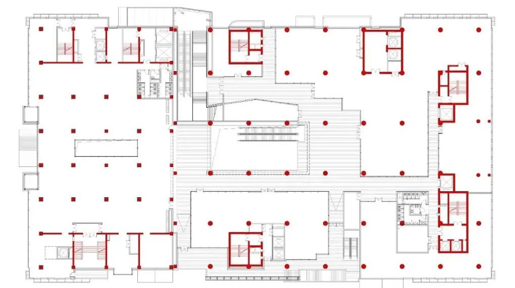
▲ 首層平面圖

▲ 二層平面圖


▲ 西側辦公入口及低區體量拆解

▲ 東側首層界面
? 消解體量

▲ 改造前后對比圖

▲ 西立面局部

▲ 雙層幕墻


▲ 剖面圖

▲ 節點詳圖
? 辦公聚落
作為改造項目,與一般新建的商業辦公綜合體相比,隆福大廈并沒有集中的所謂塔樓核心筒。我們將辦公大堂提升,設置在首二層商業之上的三層。這個辦公大堂通過東西兩個方向直達地面的扶梯與外部城市銜接,并設置了咖啡廳、接待、展覽等服務功能,而從地面層到三層的不同屬性的公共空間疊加,形成了新隆福大廈低層范圍的立體街區。

▲ 室外露臺
▲ 三層辦公大堂

▲ 辦公中庭

▲ 連接首層與三層的通高扶梯
? 激活屋頂


▲ 屋頂空間
? 強化軸線

▲ 隆福大廈立面演變

▲ 從東宮影劇院看隆福大廈

▲ 南立面設計對軸線的強化
項目名稱:隆福寺地區復興及隆福大廈改造
榮獲獎項:2021年市優丨建筑工程設計綜合獎(公共建筑)一等獎
獲獎人員:崔愷、柴培根、周凱、任重、王磊、王松、賈京花、雷博、楊文斌、劉煒、任慶英、宋枚、范改娜、劉文珽、劉曉琳
獲獎單位:中國建筑設計研究院有限公司
建設單位:北京新隆福文化投資有限公司
項目地點:北京市東城區
設計時間:2014年-2015年
建成時間:2017年
總用地面的:1.68萬 ha
總建筑面積:5.8 萬㎡
建筑高度:38.3 m
攝影:張廣源、高文仲、周凱
往期精彩內容回顧

